Đồ án tốt nghiệp - Tính toán kiểm tra hệ thống phanh khi xe chở quá tải: Đồ án tốt nghiệp NCNKTÔT
Tên môn học: Khóa luận tốt nghiệp
Giá: 99.000đ
99.000đ
Chi tiết
tài liệu :
Đồ án tốt nghiệp ngành Công nghệ Kỹ thuật ô tô - Tính toán kiểm tra hệ thống phanh khi xe chở quá tải: Đồ án tốt nghiệp ngành Công nghệ kỹ thuật Ô tô - Trường Đại học Sư phạm Kỹ thuật Thành phố Hồ Chí Minh (HCMUTE)
| Định dạng | |
| Dung lượng | 4.7 MB |
| Số trang | 83 |
| Ngành Ngành học chỉ mang tính chất tham khảo | Công nghệ Kỹ thuật ô tô |
| Lượt xem | 477 |
| Ngày đăng | 06/02/2026 |
TRƢỜNG ĐẠI HỌC SƢ PHẠM KỸ THUẬT THÀNH PHỐ HỒ CHÍ MINH
KHOA CƠ KHÍ ĐỘNG LỰC
--
ĐỒ ÁN TỐT NGHIỆP
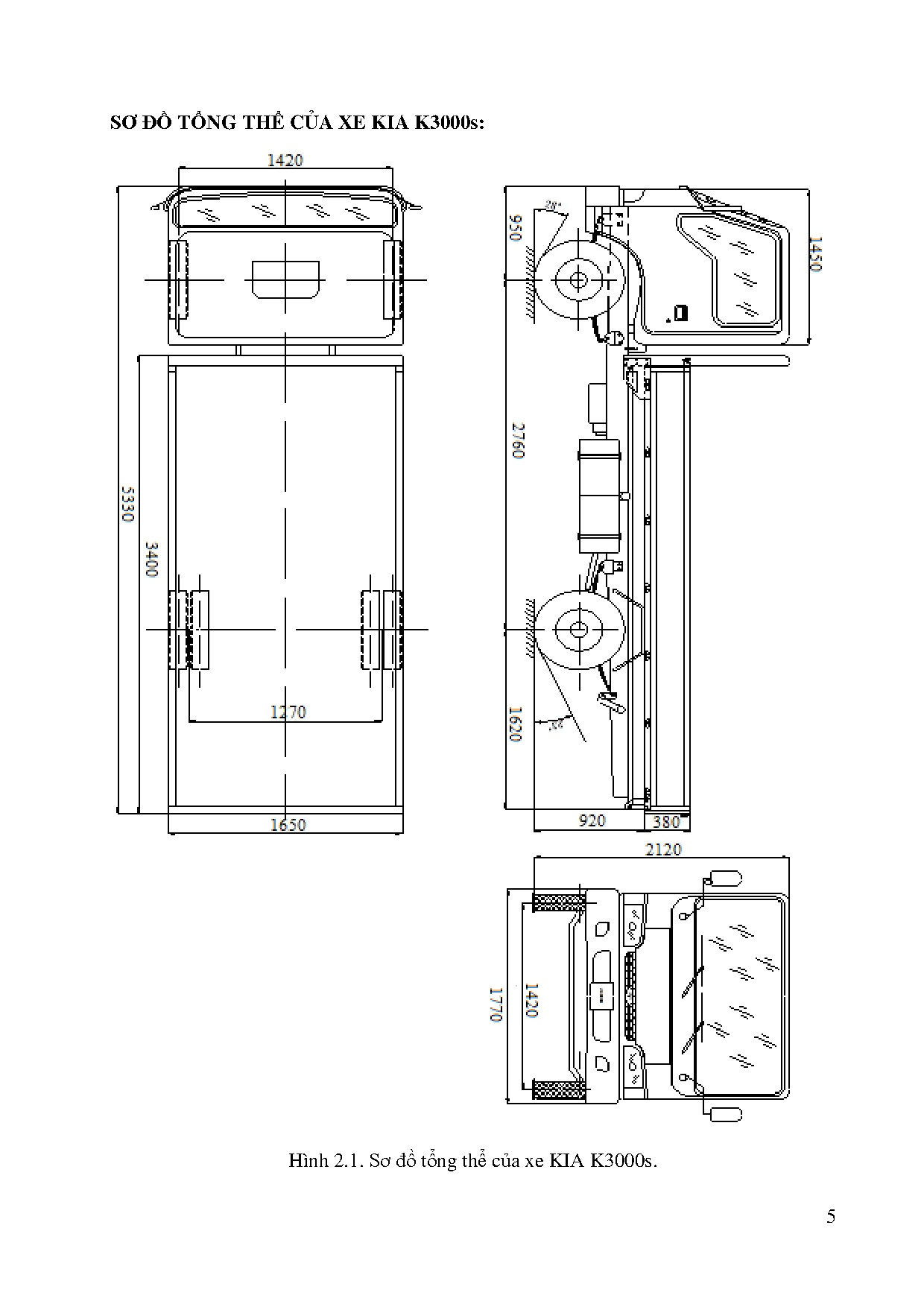
TÍNH TOÁN KIỂM TRA HỆ THỐNG PHANH KHI XE
CHỞ QUÁ TẢI
SVTH: LÊ ĐÌNH CƢỜNG
MSSV: 13145044
SVTH: TRẦN TÀI KHANG
MSSV: 13145117
GVHD: MSc. ...
KHOA CƠ KHÍ ĐỘNG LỰC
--
ĐỒ ÁN TỐT NGHIỆP
TÍNH TOÁN KIỂM TRA HỆ THỐNG PHANH KHI XE
CHỞ QUÁ TẢI
SVTH: LÊ ĐÌNH CƢỜNG
MSSV: 13145044
SVTH: TRẦN TÀI KHANG
MSSV: 13145117
GVHD: MSc. ...
Một số trang tài liệu:
Trang 1
Trang 20
Trang 41
Trang 62
Trang 83