Đồ án tốt nghiệp - Thiết kế hệ thống xử lý nước thải công ty Công Nghiệp Thực Phẩm Đồng Nai, CS 4 M
Tên môn học: Khóa luận tốt nghiệp
Giá: 91.000đ
91.000đ
Chi tiết
tài liệu :
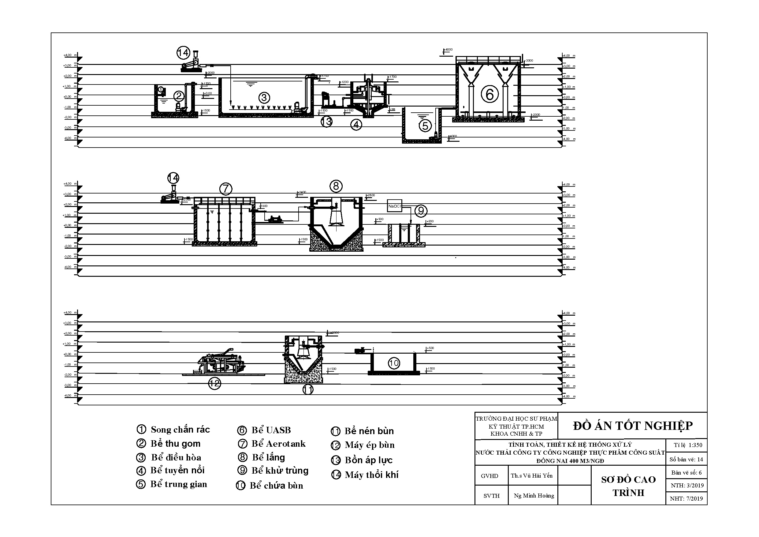
Đồ án tốt nghiệp ngành Quản lý tài nguyên & môi trường - Thiết kế hệ thống xử lý nước thải công ty Công Nghiệp Thực Phẩm Đồng Nai, công suất 400 m3/Ngày.đêm - Trường Đại học Sư phạm Kỹ thuật Thành phố Hồ Chí Minh (HCMUTE)
| Định dạng | |
| Dung lượng | 11 MB |
| Số trang | 152 |
| Ngành Ngành học chỉ mang tính chất tham khảo | Quản lý TN & MT (2025) |
| Lượt xem | 363 |
| Ngày đăng | 02/01/2026 |
BỘ GIÁO DỤC VÀ ĐÀO TẠO
TRƯỜNG ĐẠI HỌC SƯ PHẠM KỸ THUẬT TP. HỒ CHÍ MINH
KHOA CÔNG NGHỆ HÓA HỌC VÀ THỰC PHẨM
BỘ MÔN CÔNG NGHỆ KỸ THUẬT MÔI TRƯỜNG
KHÓA LUẬN TỐT NGHIỆP
Đề tài:
THIẾT KẾ HỆ THỐNG XỬ LÝ
NƯỚC THẢI CÔNG TY C...
TRƯỜNG ĐẠI HỌC SƯ PHẠM KỸ THUẬT TP. HỒ CHÍ MINH
KHOA CÔNG NGHỆ HÓA HỌC VÀ THỰC PHẨM
BỘ MÔN CÔNG NGHỆ KỸ THUẬT MÔI TRƯỜNG
KHÓA LUẬN TỐT NGHIỆP
Đề tài:
THIẾT KẾ HỆ THỐNG XỬ LÝ
NƯỚC THẢI CÔNG TY C...
Một số trang tài liệu:
Trang 1
Trang 38
Trang 76
Trang 114
Trang 152