Đồ án tốt nghiệp - Nâng cấp hệ thống xử lý nước thải tập trung 2000m3/ngày đêm và LHSXCPXTCCTTTPQTG
Tên môn học: Khóa luận tốt nghiệp
Giá: 95.000đ
95.000đ
Chi tiết
tài liệu :
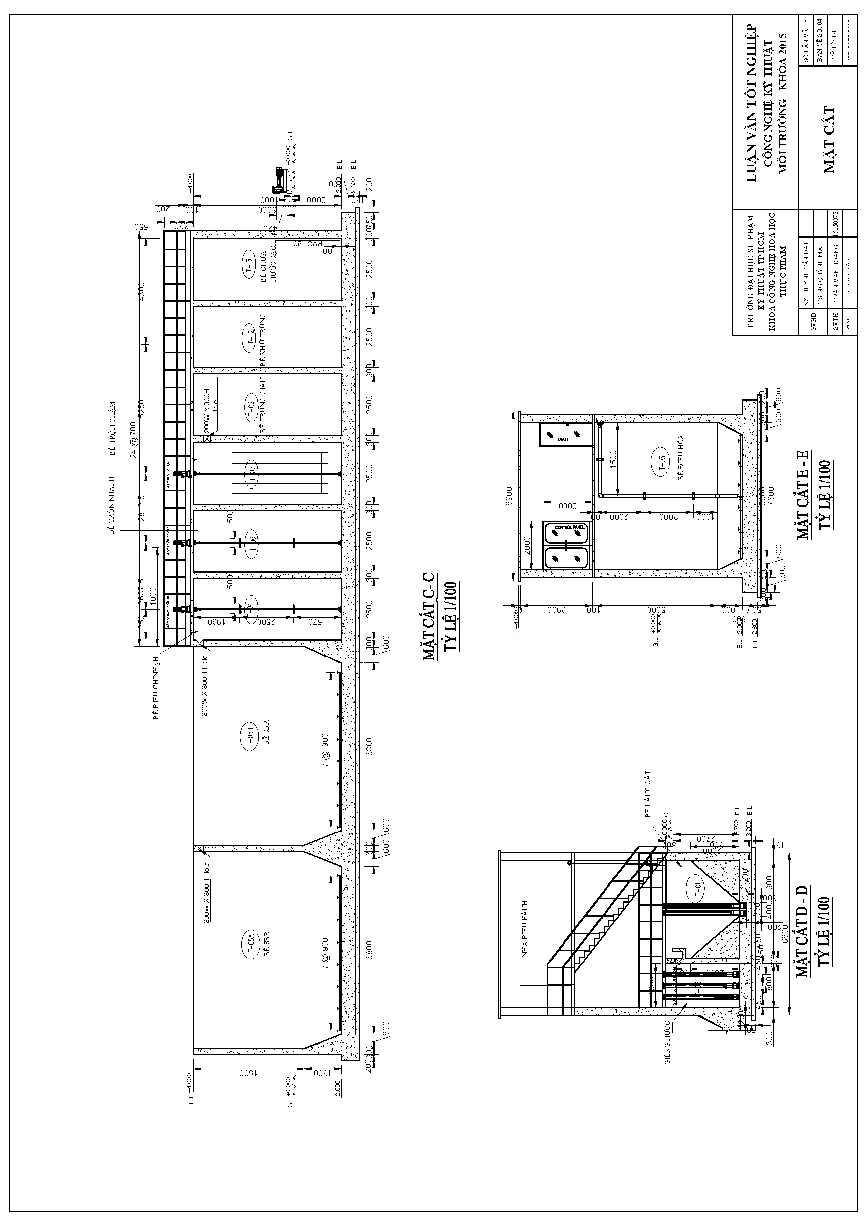
Đồ án tốt nghiệp ngành Quản lý tài nguyên & môi trường - Nâng cấp hệ thống xử lý nước thải tập trung 2000m3/ngày đêm và lập hồ sơ xin cấp phép xả thải cho công ty TNHH thực phẩm quốc tế Giavico - Trường Đại học Sư phạm Kỹ thuật Thành phố Hồ Chí Minh (HCMUTE)
| Định dạng | |
| Dung lượng | 10.68 MB |
| Số trang | 113 |
| Ngành Ngành học chỉ mang tính chất tham khảo | Quản lý TN & MT (2025) |
| Lượt xem | 300 |
| Ngày đăng | 02/01/2026 |
BỘ GIÁO DỤC VÀ ĐÀO TẠO
TRƯỜNG ĐẠI HỌC SƯ PHẠM KỸ THUẬT TP.HỒ CHÍ MINH
KHÓA LUẬN TỐT NGHIỆP
ĐỀ TÀI:
NÂNG CẤP HỆ THỐNG XỬ LÝ NƯỚC THẢI
TẬP TRUNG 2000 M3/NGÀY ĐÊM và LẬP
HỒ SƠ XIN CẤP PHÉP XẢ THẢI
CHO CÔNG TY TNHH TH�...
TRƯỜNG ĐẠI HỌC SƯ PHẠM KỸ THUẬT TP.HỒ CHÍ MINH
KHÓA LUẬN TỐT NGHIỆP
ĐỀ TÀI:
NÂNG CẤP HỆ THỐNG XỬ LÝ NƯỚC THẢI
TẬP TRUNG 2000 M3/NGÀY ĐÊM và LẬP
HỒ SƠ XIN CẤP PHÉP XẢ THẢI
CHO CÔNG TY TNHH TH�...
Một số trang tài liệu:
Trang 1
Trang 28
Trang 56
Trang 84
Trang 113