Đồ án tốt nghiệp - Thiết kế cung cấp điện cho Showroom Oto Ford Phú Mỹ
Tên môn học: Khóa luận tốt nghiệp
Giá: 86.000đ
86.000đ
Chi tiết
tài liệu :
Đồ án tốt nghiệp ngành Công nghệ Kỹ thuật ô tô - Thiết kế cung cấp điện cho Showroom Oto Ford Phú Mỹ - Trường Đại học Sư phạm Kỹ thuật Thành phố Hồ Chí Minh (HCMUTE)
| Định dạng | |
| Dung lượng | 6.09 MB |
| Số trang | 85 |
| Ngành Ngành học chỉ mang tính chất tham khảo | Công nghệ Kỹ thuật ô tô |
| Lượt xem | 125 |
| Ngày đăng | 30/03/2026 |
TRƯỜNG ĐẠI HỌC SƯ PHẠM KỸ THUẬT THÀNH PHỐ HỒ CHÍ MINH
KHOA ĐÀO TẠO VỪA HỌC VỪA LÀM
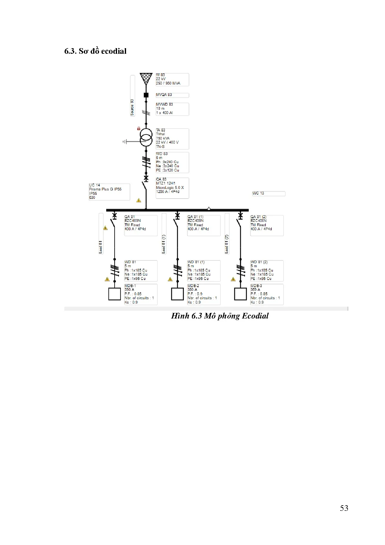
Đề tài: THIẾT KẾ CUNG CẤP ĐIỆN CHO
SHOWROOM OTO FORD PHÚ MỸ
GVHD: THS. HUỲNH THỊ NGỌC THƯỜNG
SVTH:
NGUYỄN TÙNG LÂM
MSSV: 23842079
NGUYỄN TRỌNG HIỆP
...
KHOA ĐÀO TẠO VỪA HỌC VỪA LÀM
Đề tài: THIẾT KẾ CUNG CẤP ĐIỆN CHO
SHOWROOM OTO FORD PHÚ MỸ
GVHD: THS. HUỲNH THỊ NGỌC THƯỜNG
SVTH:
NGUYỄN TÙNG LÂM
MSSV: 23842079
NGUYỄN TRỌNG HIỆP
...
Một số trang tài liệu:
Trang 1
Trang 2
Trang 3
Trang 4
Trang 21
Trang 42
Trang 63
Trang 85